Freya (3733)
Minimalist Scandinavian style home with lots of amenities! 3 to 5 beds, cathedral, optional finished basement
Bedrooms
5, 3, 4
Bathroom(s)
3
Living area
2206 sq.ft.
Garage type
-
View by floor
| 1st level | ||||
| Rooms | Sizes | Ceiling | ||
| Covered porch | 9'6" x 5'6" | ~ 8'10" | ||
| Home office | 8'10" x 10'8" | ~ 9'0" | ||
| Closet | 2'0" x 3'8" | ~ 9'0" | ||
| Foyer | 7'8" x 6'8" | ~ 9'0" | ||
| Powder room | 7'2" x 2'10" | ~ 9'0" | ||
| Kitchen | 13'0" x 17'8" | ~ 9'0" | ||
| Pantry | 5'2" x 6'8" | ~ 9'0" | ||
| Kitchen island | 4'0" x 9'0" | ~ 0'0" | ||
| Living room | 15'6" x 16'0" | ~ 9'0" | ||
| Covered deck | 15'6" x 10'0" | ~ 8'10" | ||
| Dining room | 14'8" x 10'0" | ~ 15'0" | ||
| Mud room | 3'6" x 6'8" | ~ 9'0" | ||
| 2nd level | ||||
| Rooms | Sizes | Ceiling | ||
| Bedroom | 10'2" x 10'4" | ~ 8'0" | ||
| Closet | 6'2" x 2'0" | ~ 8'0" | ||
| Bedroom | 10'2" x 10'4" | ~ 8'0" | ||
| Closet | 6'2" x 2'0" | ~ 8'0" | ||
| Laundry room | 6'6" x 6'6" | ~ 8'0" | ||
| Master suite | 14'4" x 15'8" | ~ 8'0" | ||
| Walk-in closet | 7'2" x 7'8" | ~ 8'0" | ||
| Full bathroom | 8'0" x 15'8" | ~ 8'0" | ||
| Bathroom | 7'0" x 7'6" | ~ 8'0" | ||
| Shower | 4'0" x 3'0" | ~ 0'0" | ||
| Linen | 1'4" x 1'10" | ~ 0'0" | ||
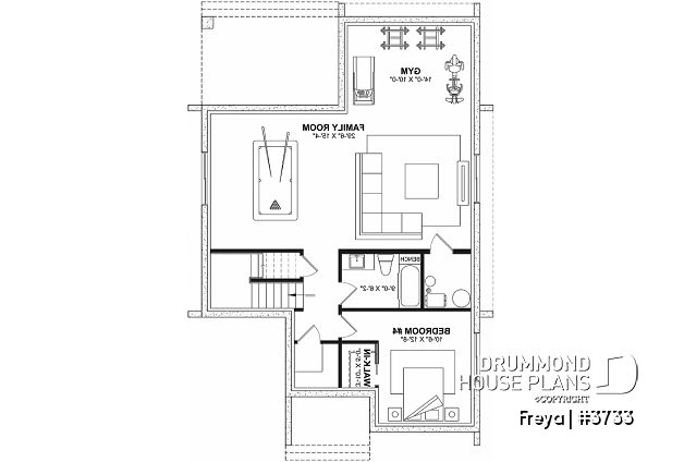
| Finished basement (Optional $) | ||||
| Rooms | Sizes | Ceiling | ||
| Bathroom | 9'0" x 6'2" | ~ 8'0" | ||
| Bedroom | 10'6" x 12'8" | ~ 8'0" | ||
| Walk-in closet | 3'10" x 5'0" | ~ 8'0" | ||
| Storage | 5'0" x 5'0" | ~ 8'0" | ||
| Great room or Family room | 29'6" x 15'4" | ~ 8'0" | ||
| Gym | 14'0" x 10'0" | ~ 8'0" | ||
| Mechanical room | 5'4" x 6'2" | ~ 8'0" | ||
| Unfinished basement | ||||
| Total living area | 2206 sq.ft. |
| 1st level | 1164 sq.ft. |
| 2nd level | 1042 sq.ft. |
| Finished basement (Optional $) | 1164 sq.ft. |
| Unfinished basement | 1164 sq.ft. |
| Width | 34'6" |
| Depth | 50'0" |
| Ridge height from top of foundation | 33'8" |
| Exterior wall | 2 X 6 |
| Foundation type included in the plan | Unfinished Basement i |
Description
Ground floor: Entrance, office (or bed #5), half bath, kitchen, dining room and living room. Sheltered terrace. Second floor: Master suite with private bathroom, 2 additional bedrooms, shower room and laundry room. Unfinished basement. --- *Finished basement (optional): Bedroom, bathroom, family room, training room, storage. Covered rear terrace. --- *If you wish to purchase the finished basement plan, as presented on this plan page, please select this option in the shopping cart, in the "Selection of foundation type" section. If you do not select this option, you will receive the unfinished full basement option, at no extra charge.
Other useful information on this plan
Full description
Modern Scandinavian home design, 3 to 5 bedrooms including a stunning master suite!
Inspired by Nordic architecture, this modern Scandinavian-style home blends simplicity, natural warmth, and functionality. With its clean lines, abundant light, and open spaces, it offers a perfect balance between modern comfort and timeless elegance.
The main floor features 9-foot ceilings that enhance the sense of openness and brightness throughout. In the dining area, a striking 15-foot cathedral ceiling creates an airy and impressive ambiance — a true architectural highlight. The covered front porch leads into a welcoming entry vestibule with storage, designed for everyday convenience and family living.
Bright and Functional Living Spaces
At the heart of the home, the modern kitchen stands out with its large island and walk-in pantry, offering both beauty and practicality. Open on one side to the dining room and on the other to the living area, this layout ensures smooth flow between spaces. The living room, featuring a central fireplace and large windows overlooking the covered rear terrace, provides a warm and inviting atmosphere ideal for family gatherings.
A family room adds an extra layer of comfort, with a central fireplace and built-in shelving on each side — perfect for books, décor, or cherished memories. A cozy built-in bench, located halfway between the main and upper floors, offers a charming nook for reading or relaxation.
Comfort and Privacy Upstairs
The primary suite serves as a peaceful retreat, featuring a freestanding tub, separate shower, and a walk-in closet. Two secondary bedrooms share a modern bathroom, while a convenient laundry room completes the upper level.
Versatile Basement and Outdoor Living
The *finished basement includes (optional $) a guest bedroom, bathroom, family room, home gym, and ample storage. The 15'6" x 10' covered rear terrace provides the perfect outdoor space for relaxing or entertaining in any season.
Combining clean Scandinavian lines, warm textures, and modern functionality, this home offers a lifestyle that’s both refined and inviting — an ideal choice for families seeking beauty, comfort, and balance.
---
*If you wish to purchase the finished basement plan, as presented on this plan page, please select this option in the shopping cart, in the "Selection of foundation type" section. If you do not select this option, you will receive the unfinished full basement option, at no extra charge.
Distinctive elements
Scandinavian inspired home.
Nine-foot ceilings throughout the main floor, except in the dining room, where a 15-foot cathedral ceiling adds a striking touch.
Covered front porch and a practical entryway with a closet.
Convenient office (or bedroom #5) located near the main entrance and powder room.
Functional kitchen with a large central island and walk-in pantry, open to the dining area on one side and the living room on the other.
Bright living room with a fireplace and large windows overlooking the rear terrace.
Spectacular dining room with a cathedral ceiling and direct access to the covered terrace.
Warm family room featuring a central fireplace with built-in shelves on each side.
Charming built-in bench halfway between the main floor and the upper level.
Primary suite offering a relaxing space with a bathtub, separate shower, and walk-in closet.
Two secondary bedrooms upstairs share a modern bathroom with shower.
Fully equipped laundry room conveniently located on the upper level.
Unfinished basement.
---
*Finished basement (optional):
Fully finished basement including a guest bedroom, bathroom, family room, gym, and storage area.
Beautiful covered rear terrace measuring 15'6" x 10', perfect for enjoying the outdoors in any weather.
---
*If you wish to purchase the finished basement plan, as presented on this plan page, please select this option in the shopping cart, in the "Selection of foundation type" section. If you do not select this option, you will receive the unfinished full basement option, at no extra charge.
























