Maple Way 3 (3287-V2)
Farmhouse 4 to 5 bedrooms home, den, family & living rooms, opt. finished basement, master on main floor
Bedrooms
5, 2, 3, 4
Bathroom(s)
3
Living area
1585 sq.ft.
Garage type
-
View by floor
| 1st level | ||||
| Rooms | Sizes | Ceiling | ||
| Porch | 7'4" x 4'0" | ~ 0'0" | ||
| Foyer | 6'2" x 8'8" | ~ 9'0" | ||
| Home office | 8'4" x 10'4" | ~ 9'0" | ||
| Closet | 5'0" x 1'8" | ~ 9'0" | ||
| Storage | 3'0" x 1'8" | ~ 9'0" | ||
| Full bathroom | 12'0" x 8'2" | ~ 9'0" | ||
| Kitchen | 14'0" x 11'2" | ~ 16'2" | ||
| Kitchen island | 8'10" x 4'0" | ~ 0'0" | ||
| Pantry | 5'0" x 9'0" | ~ 9'0" | ||
| Bedroom | 9'0" x 10'4" | ~ 9'0" | ||
| Closet | 3'8" x 2'0" | ~ 9'0" | ||
| Bathroom | 8'5" x 5'8" | ~ 9'0" | ||
| Shower | 4'0" x 3'0" | ~ 0'0" | ||
| Linen | 1'4" x 2'0" | ~ 0'0" | ||
| Living room | 17'8" x 14'0" | ~ 16'2" | ||
| Dining room | 10'8" x 12'10" | ~ 9'0" | ||
| Deck | 23'0" x 14'0" | ~ 0'0" | ||
| Master suite | 12'0" x 13'0" | ~ 9'0" | ||
| Walk-in closet | 8'4" x 4'10" | ~ 9'0" | ||
| Full bathroom | 12'0" x 8'2" | ~ 9'0" | ||
| Shower | 3'0" x 5'0" | ~ 0'0" | ||
| Mud room | 3'10" x 6'4" | ~ 9'0" | ||
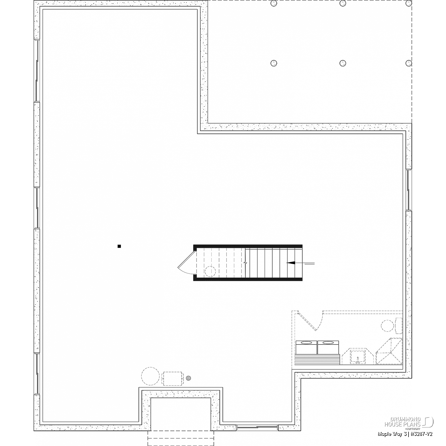
| Finished basement (Optional $) | ||||
| Rooms | Sizes | Ceiling | ||
| Mechanical room | 10'0" x 13'4" | ~ 8'0" | ||
| Laundry room | 9'8" x 11'8" | ~ 8'0" | ||
| Bathroom | 8'6" x 7'8" | ~ 8'0" | ||
| Bedroom | 10'8" x 15'4" | ~ 8'0" | ||
| Bedroom | 10'8" x 12'4" | ~ 8'0" | ||
| Playroom | 29'0" x 12'4" | ~ 8'0" | ||
| Home theater | 17'2" x 13'6" | ~ 8'0" | ||
| Unfinished basement | ||||
| Total living area | 1585 sq.ft. |
| 1st level | 1585 sq.ft. |
| Finished basement (Optional $) | 1585 sq.ft. |
| Unfinished basement | 1585 sq.ft. |
| Width | 42'0" |
| Depth | 47'10" |
| Ridge height from top of foundation | 23'0" |
| Exterior wall | 2 X 6 |
| Foundation type included in the plan | Unfinished Basement i |
Description
Main Floor: Entry, mudroom, primary bedroom with private bathroom and walk-in closet, secondary bedroom, home office (or bedroom #5), shower room, kitchen with walk-in pantry, dining area, and family room. Unfinished basement. --- *Optional Finished Basement: Two bedrooms, game room, home office nook, bathroom, laundry room, mechanical room, and home theater. --- *If you wish to purchase the finished basement plan, as presented on this plan page, please select this option in the shopping cart, in the "Selection of foundation type" section. If you do not select this option, you will receive the unfinished full basement option, at no extra charge.
Other useful information on this plan
Full description
Perfect family home with 2 bedrooms on the main floor and 2 bedrooms in the basement which is fully finished!
Beautiful Farmhouse MAPLE WAY 3 (#3287-V2) offers a total of 3170 sf. on the ground floor and in the fully finished basement. The ceilings are 9' everywhere on the ground floor, and there is a 16'2'' high cathedral ceiling in the kitchen and in the living room. This plan is the 3rd in the very popular MAPLE WAY collection, and the first without a garage. The latter could easily be added according to your needs, via our plan modification services.
The entrance opens onto a large walk-in closet and has a practical bench where you can put a handbag or simply sit down. Then immediately near the entrance is a home office. We have built a wardrobe there, allowing you versatility with this room for an additional bedroom, a nursery or a small playroom, for example. Then, on the right, a secondary bedroom (or office #2) and a practical shower room will delight a child or your guests!
The master suite has a walk-in closet, as well as a private and complete bathroom, with separate bath and shower, and two sinks. In addition, this bedroom offers direct access to the rear terrace. Then, at the back of the house you will find the common areas. The kitchen has a large island and a pantry (so popular!!), and it is open to the dining room on one side and the living room on the other. The latter offers a fireplace that is visible from the kitchen, ideal setting when preparing suppers in winter! The dining room and the living room receive a lot of natural light through windows and patio doors which are very abundant in this area.
An uncovered terrace is planned at the back of the house but not included on the house plan. In addition, it will be possible to have the plan modified, by one of our 26 offices, if you wish to add a sheltered terrace at the back (and/or a garage).
*Optional finished basement:
We have laid out the basement with a family thought by planning 2 additional bedrooms and a bathroom. Also, a home theater (bedroom #5), a games room (or family room) as well as the laundry room and the mechanical room are found on this level.
We love MAPLE WAY 3 for the versatility of its spaces that will harmonize with the needs of your family!
---
*If you wish to purchase the finished basement plan, as presented on this plan page, please select this option in the shopping cart, in the "Selection of foundation type" section. If you do not select this option, you will receive the unfinished full basement option, at no extra charge.
Distinctive elements
Farmhouse-style single-storey home plan, combining charm and everyday functionality.
9’ ceilings throughout the main floor, with a striking cathedral ceiling reaching 16’2” in the kitchen and living room.
Abundant natural light in the dining area, living room, and primary bedroom.
Inviting kitchen with a large central island and walk-in pantry, open to the living room with a cozy fireplace.
Comfortable primary suite featuring a walk-in closet and a spacious private bathroom with separate tub and shower.
Home office located near the front entry, ideal for remote work or a flexible living space.
Functional entryway with a built-in bench and walk-in coat closet.
Secondary bedroom on the main floor, with a nearby shower room.
Large laundry room planned in the basement, offering generous space and organization.
Unfinished basement included in the base plan, ready for future development.
---
*Optional finished basement:
2 bedrooms, bathroom, family room or game room, laundry room, home theater (or bedroom #5), and storage space.
---
*If you wish to purchase the finished basement plan, as presented on this plan page, please select this option in the shopping cart, in the "Selection of foundation type" section. If you do not select this option, you will receive the unfinished full basement option, at no extra charge.











