Kelowna 2 (2724-V1)
Country home plan with 4 to 5 bedrooms, garage, office, sheltered terrace and beautiful master suite
Bedrooms
5, 4
Bathroom(s)
3
Living area
2180 sq.ft.
Garage type
One-car garage
View by floor
| 1st level | ||||
| Rooms | Sizes | Ceiling | ||
| Garage | 13'8" x 22'6" | ~ 10'8" | ||
| Mud room | 6'2" x 6'4" | ~ 9'0" | ||
| Powder room | 7'4" x 2'6" | ~ 9'0" | ||
| Laundry room | 7'0" x 5'6" | ~ 9'0" | ||
| Pantry | 6'8" x 5'8" | ~ 9'0" | ||
| Foyer | 6'4" x 5'2" | ~ 9'0" | ||
| Closet | 4'10" x 2'0" | ~ 9'0" | ||
| Home office | 11'4" x 4'10" | ~ 9'0" | ||
| Living room | 13'4" x 12'8" | ~ 9'0" | ||
| Dining room | 17'4" x 12'10" | ~ 9'0" | ||
| Kitchen | 17'4" x 12'10" | ~ 9'0" | ||
| Kitchen island | 10'4" x 3'4" | ~ 0'0" | ||
| Covered deck | 18'0" x 12'0" | ~ 17'0" | ||
| Covered porch | 7'8" x 16'0" | ~ 9'2" | ||
| 2nd level | ||||
| Rooms | Sizes | Ceiling | ||
| Bedroom | 10'0" x 9'1" | ~ 8'0" | ||
| Closet | 4'10" x 2'0" | ~ 8'0" | ||
| Bedroom | 10'0" x 9'1" | ~ 8'0" | ||
| Closet | 4'10" x 2'0" | ~ 8'0" | ||
| Bedroom | 10'0" x 9'6" | ~ 8'0" | ||
| Walk-in closet | 4'0" x 3'4" | ~ 8'0" | ||
| Storage | 3'4" x 1'6" | ~ 8'0" | ||
| Master suite | 14'0" x 11'0" | ~ 8'0" | ||
| Walk-in closet | 6'4" x 5'6" | ~ 8'0" | ||
| Walk-in closet | 4'0" x 7'4" | ~ 8'0" | ||
| Full bathroom | 11'0" x 8'4" | ~ 8'0" | ||
| Enclosed toilet space | 6'2" x 2'8" | ~ 8'0" | ||
| Shower | 5'0" x 3'0" | ~ 0'0" | ||
| Linen | 1'6" x 1'10" | ~ 0'0" | ||
| Enclosed shower space | 6'2" x 5'10" | ~ 8'0" | ||
| Half bath or powder room | 6'2" x 6'8" | ~ 8'0" | ||
| Bathroom | 6'2" x 12'10" | ~ 8'0" | ||
| Enclosed shower space | 6'2" x 5'10" | ~ 8'0" | ||
| Linen | 1'4" x 1'10" | ~ 0'0" | ||
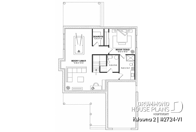
| Finished basement (Optional $) | ||||
| Rooms | Sizes | Ceiling | ||
| Great room or Family room | 13'0" x 30'2" | ~ 8'0" | ||
| Storage | 5'4" x 8'2" | ~ 8'0" | ||
| Guest suite | 12'8" x 12'6" | ~ 8'0" | ||
| Closet | 8'2" x 2'0" | ~ 8'0" | ||
| Mechanical room | 5'8" x 8'3" | ~ 8'0" | ||
| Bathroom | 7'4" x 12'0" | ~ 8'0" | ||
| Shower | 4'0" x 3'0" | ~ 0'0" | ||
| Linen | 1'6" x 1'6" | ~ 0'0" | ||
| Unfinished basement | ||||
| Total living area | 2180 sq.ft. |
| 1st level | 1102 sq.ft. |
| 2nd level | 1078 sq.ft. |
| Finished basement (Optional $) | 1102 sq.ft. |
| Unfinished basement | 1102 sq.ft. |
| Width | 38'8" |
| Depth | 50'4" |
| Ridge height from top of foundation | 31'2" |
| Exterior wall | 2 X 6 |
| Foundation type included in the plan | Unfinished Basement i |
Description
Ground floor: Entrance, office, powder room, laundry room, mudroom, living room, kitchen with pantry, dining room. Second floor: Parents' suite with private bathroom and two (2) walk-in closets, 3 additional bedrooms, a full bathroom and a boudoir (reading corner). Sheltered terrace. Single garage. Unfinished basement. --- * Optional finished basement: Bedroom, family room, shower room and storage. --- *If you wish to purchase the finished basement plan, as presented on this plan page, please select this option in the shopping cart, in the "Selection of foundation type" section. If you do not select this option, you will receive the unfinished full basement option, at no extra charge.
Other useful information on this plan
Full description
Kelowna 2 (2724-V1) – Rustic Country Home Plan with Home Office, Covered Terrace and Expansion Potential
The Kelowna 2 house plan (2724-V1) stands out for its rustic country charm, beautifully combining warmth, character, and contemporary comfort. Designed to meet the needs of today’s families, this model features an inviting architectural style and a thoughtfully planned interior layout that emphasizes both functionality and everyday comfort.
From the moment you step inside, the 9-foot ceilings throughout the main floor create a bright and spacious atmosphere. The single-car garage, conveniently connected to both the mudroom and walk-in pantry, simplifies daily routines and makes coming home with groceries effortless.
The main floor also includes a compact yet functional home office, designed to accommodate two workstations, making it ideal for remote work or study time. The living room, warm and welcoming, is highlighted by a central fireplace, creating the perfect setting for cozy family evenings.
At the heart of the home, the generous open-concept kitchen features a large island, a practical walk-in pantry, and a seamless connection to the dining area, encouraging shared moments and easy entertaining. Nearby, a convenient powder room for guests, discreetly located near the front entry, enhances main-floor comfort.
The spacious primary suite offers privacy and relaxation, with two walk-in closets and a full private ensuite bathroom. The well-designed laundry room adds another layer of practicality, featuring a laundry chute from one of the primary suite’s walk-in closets—a thoughtful detail for everyday living.
Upstairs, three additional bedrooms share a full bathroom, while a reading nook or boudoir provides a quiet retreat, perfect for relaxing, reading, or working in peace.
Outdoors, the covered rear terrace with a cathedral ceiling extends the living space and allows you to enjoy the outdoors comfortably throughout the seasons.
The unfinished basement, included in the base plan, offers excellent future development potential. *As an option, it can be finished to include a fifth bedroom with direct access to a shower room, as well as a large family room, ideal for entertaining guests or enjoying leisure time.
Versatile, warm, and designed to evolve with your lifestyle, the Kelowna 2 (2724-V1) is a home plan that blends timeless charm with modern living—today and for years to come.
---
*If you wish to purchase the finished basement plan, as presented on this plan page, please select this option in the shopping cart, in the "Selection of foundation type" section. If you do not select this option, you will receive the unfinished full basement option, at no extra charge.
Distinctive elements
Country rustic home with charming character, blending warmth and modern comfort.
9’ ceilings throughout the main floor, enhancing the sense of space and openness.
Single-car garage with direct access to the mudroom and walk-in pantry for everyday convenience.
Compact home office, designed to comfortably accommodate two workstations.
Inviting living room with a fireplace, perfect for cozy family evenings.
Spacious open kitchen, featuring a large island, walk-in pantry, and seamless connection to the dining area.
Well-planned laundry room with a laundry chute from one of the primary suite walk-in closets.
Convenient powder room for guests, located near the front entry.
Private primary suite offering two walk-in closets and a full ensuite bathroom.
Three additional bedrooms on the upper floor, sharing a full bathroom.
Upstairs reading nook or boudoir, ideal for a quiet retreat or flexible living space.
Covered rear terrace with cathedral ceiling, perfect for enjoying outdoor living in all seasons.
Unfinished basement included in the base plan, ready for future development.
---
*Optional finished basement:
Addition of a fifth bedroom.
Shower room.
Large family room, ideal for entertainment and relaxation.
---
*If you wish to purchase the finished basement plan, as presented on this plan page, please select this option in the shopping cart, in the "Selection of foundation type" section. If you do not select this option, you will receive the unfinished full basement option, at no extra charge.


















