Augusta 2 (2678-V1)
Traditional Country House Design with master suite, 3 to 4 Bedrooms, Deep Garage and Expandable Basement
Bedrooms
3, 4
Bathroom(s)
3
Living area
1687 sq.ft.
Garage type
One-car garage
View by floor
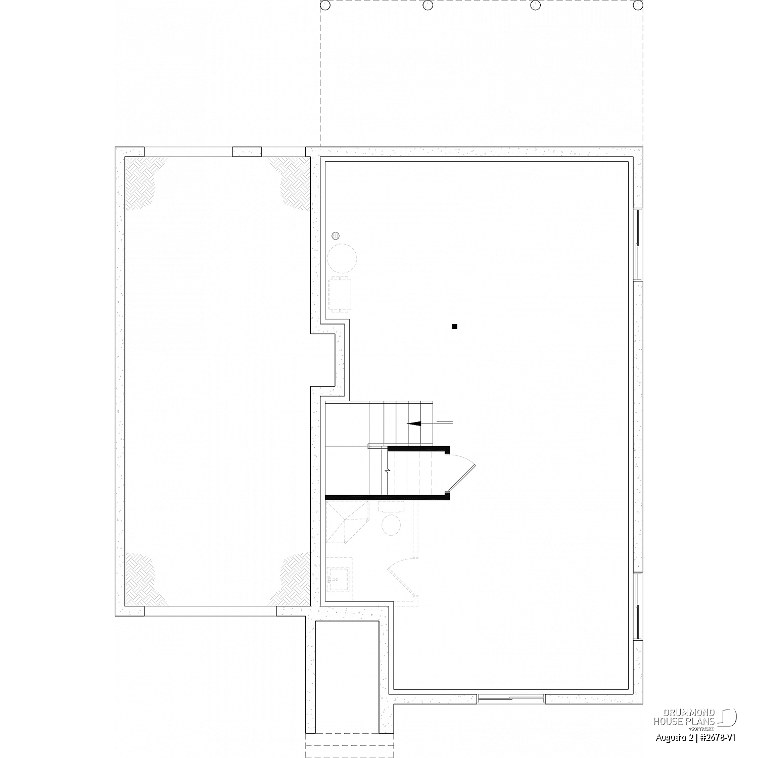
| Finished basement (Optional $) | ||||
| Rooms | Sizes | Ceiling | ||
| Playroom | 20'8" x 12'11" | ~ 8'0" | ||
| Bathroom | 8'0" x 11'4" | ~ 8'0" | ||
| Enclosed toilet space | 2'8" x 6'0" | ~ 8'0" | ||
| Shower | 3'0" x 5'0" | ~ 8'0" | ||
| Linen | 1'6" x 3'4" | ~ 8'0" | ||
| Mechanical room | 5'4" x 16'0" | ~ 8'0" | ||
| Bedroom | 11'8" x 11'1" | ~ 8'0" | ||
| Walk-in closet | 3'0" x 11'1" | ~ 8'0" | ||
| 1st level | ||||
| Rooms | Sizes | Ceiling | ||
| Laundry room | 7'6" x 5'6" | ~ 9'0" | ||
| Kitchen | 12'0" x 12'4" | ~ 9'0" | ||
| Pantry | 3'0" x 5'7" | ~ 9'0" | ||
| Foyer | 4'8" x 4'11" | ~ 9'0" | ||
| Closet | 4'8" x 2'0" | ~ 9'0" | ||
| Garage | 12'8" x 30'8" | ~ 10'4" | ||
| Closet | 1'4" x 2'0" | ~ 9'0" | ||
| Terrace | 22'0" x 10'0" | ~ 0'0" | ||
| Porch | 5'0" x 8'0" | ~ 9'8" | ||
| Dining room | 12'0" x 10'9" | ~ 9'0" | ||
| Living room | 16'8" x 13'0" | ~ 9'0" | ||
| Bathroom | 6'0" x 5'7" | ~ 9'0" | ||
| 2nd level | ||||
| Rooms | Sizes | Ceiling | ||
| Bedroom | 13'0" x 12'0" | ~ 8'0" | ||
| Shower | 2'8" x 5'0" | ~ 0'0" | ||
| Shower room or three quarter bath | 7'6" x 6'5" | ~ 8'0" | ||
| Walk-in closet | 9'4" x 6'5" | ~ 8'0" | ||
| Bedroom | 10'0" x 13'3" | ~ 8'0" | ||
| Closet | 2'0" x 11'10" | ~ 7'4" | ||
| Bedroom | 12'4" x 11'0" | ~ 8'0" | ||
| Closet | 5'0" x 3'4" | ~ 8'0" | ||
| Walk-in closet | 4'6" x 3'0" | ~ 8'0" | ||
| Full bathroom | 9'2" x 9'8" | ~ 8'0" | ||
| Unfinished basement | ||||
| Total living area | 1687 sq.ft. |
| Finished basement (Optional $) | 827 sq.ft. |
| 1st level | 827 sq.ft. |
| 2nd level | 860 sq.ft. |
| Unfinished basement | 827 sq.ft. |
| Width | 36'0" |
| Depth | 38'0" |
| Ridge height from top of foundation | 24'8" |
| Exterior wall | 2 X 6 |
| Foundation type included in the plan | Unfinished Basement i |
Description
Main Floor: Entry, living room, dining area, kitchen with walk-in pantry, powder room, and laundry room. Upper Floor: Primary bedroom with walk-in closet, reading nook, and private bathroom; two secondary bedrooms; full bathroom; storage closet. Single-car garage, extra deep. Unfinished basement. --- *Optional Finished Basement: Guest suite with bathroom, game room, home office nook, and mechanical / storage room. --- *If you wish to purchase the finished basement plan, as presented on this plan page, please select this option in the shopping cart, in the "Selection of foundation type" section. If you do not select this option, you will receive the unfinished full basement option, at no extra charge.
Other useful information on this plan
Full description
A Country-Style House Plan Inspired by Historic Homes and Designed for Modern Family Living
Inspired by the timeless charm of traditional country homes, this house plan immediately captivates with its classic silhouette and warm, inviting character. Designed to echo the elegance of historic homes while meeting today’s lifestyle needs, it offers a perfect balance of authenticity, comfort, and functionality—creating a place where you truly feel at home.
From the moment you step inside, the 9-foot ceilings on the main floor enhance the sense of space and natural light. The welcoming front entry, complete with a practical coat closet, sets the tone for an organized and comfortable daily routine. One particularly appreciated feature is the direct access from the garage to the kitchen, making it effortless to bring in groceries and everyday essentials.
At the heart of the home, the inviting kitchen is designed for both practicality and pleasure. It features a central island, a walk-in pantry, and a charming decorative shelving nook—perfect for displaying favorite pieces, storing cookbooks, or creating a cozy coffee bar where mornings begin at a relaxed pace. Open to the living spaces, the kitchen naturally encourages connection and shared moments.
A thoughtfully placed exterior access to the powder room helps keep floors clean after outdoor activities, while the main-floor laundry room eliminates unnecessary trips between levels, simplifying everyday life.
Upstairs, three well-arranged bedrooms provide comfort and privacy for the entire family. The primary suite stands out with its sloped ceiling, a peaceful reading nook, a private ensuite bathroom, and a spacious walk-in closet, creating a true retreat at the end of the day. The children’s bedrooms, bright and generously sized, also feature sloped ceilings that add unique character and warmth. A shared second bathroom with a double vanity completes the upper level.
The extra-deep single-car garage offers exceptional versatility, easily accommodating a motorcycle, sports equipment, or even a small workshop. The unfinished basement, included in the base plan, provides endless opportunities for future expansion. Optional layouts allow for a guest suite with private bathroom, a family or game room with a home office nook, as well as ample storage and mechanical space.
This charming country-style home is designed to grow with you—offering timeless appeal, thoughtful details, and a welcoming atmosphere you’ll enjoy for years to come.
Distinctive elements
Traditional country-style home plan, inspired by the timeless shape and character of historic homes.
9’ ceilings on the main floor, creating a spacious and welcoming atmosphere.
Inviting front entry with a practical coat closet.
Direct access from the garage to the kitchen, making it easy to bring in groceries and everyday items.
Warm and functional kitchen featuring a central island and walk-in pantry, plus a charming display nook with shelving—perfect for décor, cookbooks, or a cozy coffee bar.
Exterior access to the powder room, ideal for keeping floors clean after outdoor activities.
Main-floor laundry room, eliminating unnecessary trips between levels.
Three bedrooms on the upper floor, thoughtfully arranged for family living.
Charming primary suite with a sloped ceiling, reading nook, private bathroom, and a spacious walk-in closet.
Children’s bedrooms with sloped ceilings, adding character, and well-sized closets.
Shared family bathroom with a double vanity for added convenience.
Extra-deep single-car garage, offering space for a motorcycle, storage, or hobby equipment.
Unfinished basement included in the base plan, ready for future development.
---
*Optional finished basement:
Guest suite with private bathroom,
Game room or family room with a home office nook,
Mechanical room and storage space.
---
*If you wish to purchase the finished basement plan, as presented on this plan page, please select this option in the shopping cart, in the "Selection of foundation type" section. If you do not select this option, you will receive the unfinished full basement option, at no extra charge.
































