Aika 2 (6106-V1)
Single storey home plan, 1 to 4 beds, 2.5 baths, optional finished basement, living & family rooms, 9' ceiling
Bedrooms
1, 2, 3, 4
Bathroom(s)
2
Living area
1142 sq.ft.
Garage type
-
View by floor
| 1st level | ||||
| Rooms | Sizes | Ceiling | ||
| Covered porch | 23'0" x 4'4" | ~ 15'0" | ||
| Porch | 0'0" x 6'0" | ~ 0'0" | ||
| Full bathroom | 13'4" x 8'4" | ~ 9'0" | ||
| Shower | 6'0" x 3'0" | ~ 0'0" | ||
| Linen | 2'6" x 1'6" | ~ 0'0" | ||
| Kitchen | 15'0" x 11'2" | ~ 9'0" | ||
| Kitchen island | 9'4" x 3'4" | ~ 0'0" | ||
| Pantry | 4'6" x 5'2" | ~ 9'0" | ||
| Wine cellar | 3'6" x 2'4" | ~ 9'0" | ||
| Foyer | 7'8" x 7'8" | ~ 9'0" | ||
| Closet | 7'4" x 2'0" | ~ 9'0" | ||
| Master suite | 11'0" x 14'0" | ~ 9'0" | ||
| Walk-in closet | 7'0" x 9'4" | ~ 9'0" | ||
| Linen | 2'0" x 2'6" | ~ 9'0" | ||
| Living room/dining room | 20'0" x 13'8" | ~ 9'0" | ||
| Powder/laundry room | 8'0" x 5'6" | ~ 9'0" | ||
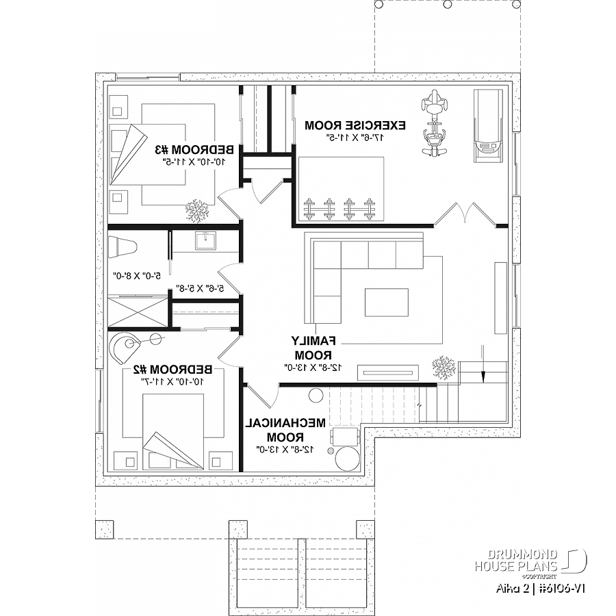
| Finished basement (Optional $) | ||||
| Rooms | Sizes | Ceiling | ||
| Bedroom | 10'10" x 11'7" | ~ 8'0" | ||
| Closet | 5'6" x 2'0" | ~ 8'0" | ||
| Bedroom | 10'10" x 11'5" | ~ 9'0" | ||
| Closet | 5'6" x 2'0" | ~ 8'0" | ||
| Closet | 4'0" x 1'10" | ~ 8'0" | ||
| Great room or Family room | 12'8" x 13'0" | ~ 8'0" | ||
| Mechanical room | 9'8" x 7'0" | ~ 8'0" | ||
| Exercise room | 17'6" x 11'5" | ~ 8'0" | ||
| Closet | 5'6" x 1'8" | ~ 8'0" | ||
| Bathroom | 10'10" x 8'0" | ~ 8'0" | ||
| Shower | 5'0" x 2'8" | ~ 0'0" | ||
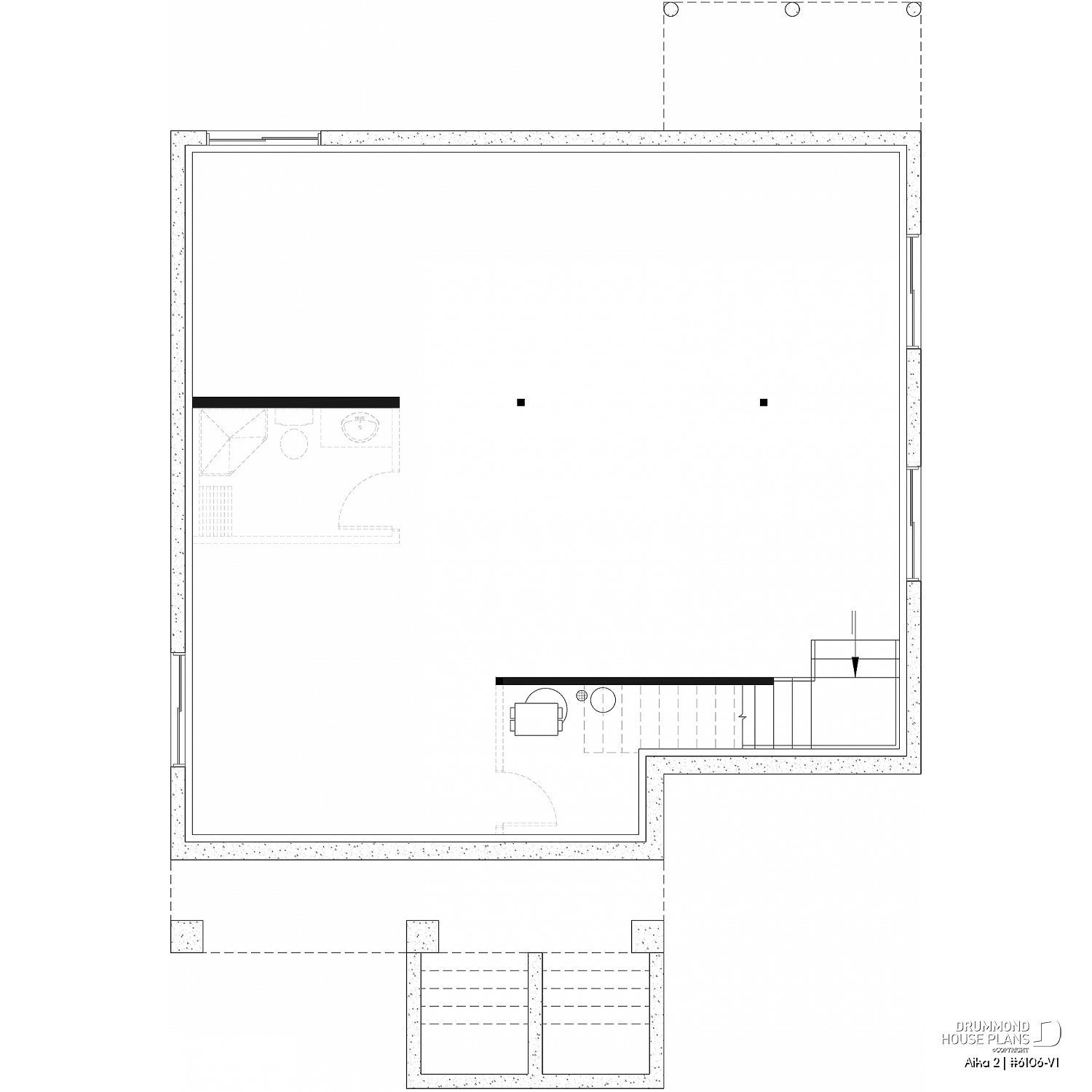
| Unfinished basement | ||||
| Total living area | 1142 sq.ft. |
| 1st level | 1142 sq.ft. |
| Finished basement (Optional $) | 1142 sq.ft. |
| Unfinished basement | 1142 sq.ft. |
| Width | 35'0" |
| Depth | 34'0" |
| Ridge height from top of foundation | 23'4" |
| Exterior wall | 2 X 6 |
| Foundation type included in the plan | Unfinished Basement i |
Description
Ground floor: Entrance, master suite with private bathroom, kitchen, pantry, living room, powder room with washer-dryer. Unfinished basement. --- *Optional finished basement: 2 to 3 bedrooms, family room, shower room, exercise room (or bedroom #4), mechanical room. --- *If you wish to purchase the finished basement plan, as presented on this plan page, please select this option in the shopping cart, in the "Selection of foundation type" section. If you do not select this option, you will receive the unfinished full basement option, at no extra charge.
Other useful information on this plan
Full description
Aika 2 (6106-V1) – Modern Rustic House Plan with Main-Floor Primary Suite and Expandable Basement
The Aika 2 house plan (6106-V1) stands out for its compact footprint, highly sought-after modern rustic style, and smart, functional layout—making it an excellent choice for families, couples, or those seeking a stylish primary or secondary residence. Featuring a warm blend of wood and masonry on the front façade, this home offers a timeless architectural appeal that fits seamlessly into a variety of settings.
From the outside, the spacious covered front balcony immediately makes an impression, with a ceiling height exceeding 15 feet that creates a sense of grandeur while providing a sheltered outdoor space to enjoy in any season. Inside, 9-foot ceilings throughout the main floor enhance the feeling of openness and natural light.
The entryway is both practical and welcoming, complete with a built-in bench and a large coat closet designed for everyday organization. The main living area unfolds into a fully open-concept layout, bringing together the kitchen, dining area, and living room. Thanks to generous windows, this space is filled with beautiful natural light, creating a warm and inviting atmosphere.
The well-designed kitchen includes a walk-in pantry, a central island, and a wine cellar, offering ample storage and functionality for cooking and entertaining. Open to the main living spaces, it encourages easy interaction and shared moments.
A key highlight of the Aika 2 (6106-V1) is the primary suite located on the main floor, providing comfort and privacy. It features a spacious walk-in closet and a private ensuite with a double vanity, as well as a separate bathtub and shower. A conveniently located powder room, equipped with stacked washer and dryer, completes the main level.
The unfinished basement, included in the base plan, offers excellent future potential. As an option, it can be fully finished to include two additional bedrooms and a home gym or fourth bedroom, bringing the total to up to four bedrooms. A thoughtfully designed basement shower room, with the vanity and storage on one side and the shower and toilet on the other, adds comfort and efficiency.
Compact, bright, and highly adaptable, the Aika 2 (6106-V1) is a modern rustic house plan that perfectly balances comfort, style, and long-term flexibility.
Distinctive elements
Compact home with modern rustic inspiration, featuring wood and masonry on the front façade.
Spacious covered front balcony, with a ceiling height of over 15 feet.
9’ ceilings throughout the main floor.
Built-in bench and large coat closet in the entryway.
Kitchen with walk-in pantry, central island, and wine cellar.
Beautiful natural light throughout the main living area.
Open-concept layout combining the kitchen, dining area, and living room.
**Primary suite on the main floor, featuring a large walk-in closet, double vanity, and separate tub and shower.
Main-floor powder room equipped with stacked washer and dryer.
Unfinished basement included in the base plan.
---
*Optional fully finished basement:
Allows for the addition of two bedrooms and a home gym (or bedroom #4), for a possible total of four bedrooms.
Well-designed basement shower room, with the vanity and storage on one side, and the shower and toilet on the other.
---
*If you wish to purchase the finished basement plan, as presented on this plan page, please select this option in the shopping cart, in the "Selection of foundation type" section. If you do not select this option, you will receive the unfinished full basement option, at no extra charge.
---
** An alternate 2-bedroom version of this house plan is also available, see plan no. [url=https://drummondhouseplans.com/plan/aika-contemporary-1003311]6106[/url] for details.
















