Joshua (1703)
Compact Modern Home Plan with Open Floor Plan, Upstairs Suite and Spacious Terrace
Bedrooms
1, 2
Bathroom(s)
2
Living area
924 sq.ft.
Garage type
-
Virtual visit
View by floor
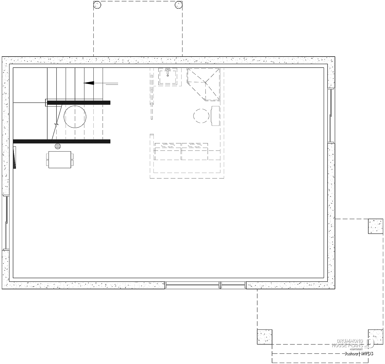
| 1st level | ||||
| Rooms | Sizes | Ceiling | ||
| Kitchen/dinette | 13'4" x 9'0" | ~ 8'0" | ||
| Bathroom | 5'0" x 9'0" | ~ 8'0" | ||
| Foyer | 4'4" x 6'4" | ~ 8'0" | ||
| Closet | 2'0" x 4'6" | ~ 8'0" | ||
| Living room | 11'10" x 10'8" | ~ 8'0" | ||
| Bedroom | 9'8" x 10'8" | ~ 8'0" | ||
| Closet | 6'6" x 2'0" | ~ 8'0" | ||
| Closet | 2'0" x 1'4" | ~ 8'0" | ||
| Laundry space | 6'0" x 5'2" | ~ 8'0" | ||
| Covered porch | 11'4" x 11'4" | ~ 0'0" | ||
| 2nd level | ||||
| Rooms | Sizes | Ceiling | ||
| Master suite | 12'10" x 11'6" | ~ 8'0" | ||
| Closet | 2'0" x 5'6" | ~ 8'0" | ||
| Shower room or three quarter bath | 5'4" x 6'4" | ~ 8'0" | ||
| Deck | 16'0" x 21'0" | ~ 0'0" | ||
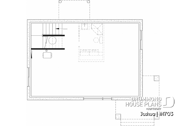
| Unfinished basement (Optional $) | ||||
| 1st level (Optional $) | ||||
| Total living area | 924 sq.ft. |
| 1st level | 630 sq.ft. |
| 2nd level | 294 sq.ft. |
| Unfinished basement (Optional $) | 630 sq.ft. |
| 1st level (Optional $) | 630 sq.ft. |
| Width | 30'0" |
| Depth | 21'0" |
| Ridge height from top of foundation | 20'11" |
| Exterior wall | 2 X 6 |
| Foundation type included in the plan | Floating Slab i |
Description
Main floor: Main entrance with closet, kitchen with room for a table that seats 4, full bathroom, secondary bedroom, separate laundry area. Second floor: Master suite with shower room and access to the terrace through patio doors. Large second floor terrace. *Floating slab foundation included in the base plan. --- *Unfinished Basement (optional $): If you wish to purchase the unfinished basement plan option ($), please select this option in the shopping cart, in the "Select your foundation" section. If you do not select this option, you will receive a floating slab as your foundation, at no extra cost.
Other useful information on this plan
Full description
Compact and Bright Modern Home Plan with Warm and Contemporary Design
This compact modern home stands out with its clean architectural lines and warm, inviting materials that blend modern style with timeless charm. Designed for comfort and efficiency, it offers a perfect balance between elegance, functionality, and natural light, making it ideal for today’s lifestyle.
The front façade immediately draws attention with its tasteful mix of stone, decorative columns, and refined trim details. A covered front porch adds to its curb appeal while providing a welcoming space to enjoy every season.
Inside, a practical entryway with a closed vestibule and spacious closet ensures everything stays organized and clutter-free. From there, the home opens into a bright, open-concept living area that seamlessly connects the living room, dining room, and kitchen. Large windows allow abundant natural light to flood the space, creating a warm and airy atmosphere perfect for everyday living.
The well-planned kitchen offers both style and practicality, featuring a patio door leading to the backyard—ideal for summer barbecues or morning coffee outdoors. Just steps away, a compact laundry area accommodates a stacked washer and dryer setup, maximizing convenience without compromising space.
On the main floor, a versatile secondary room can serve as a home office, guest bedroom, or hobby space, adapting easily to your lifestyle. A full bathroom completes this level, providing comfort and functionality for both residents and visitors.
Upstairs, the primary suite offers a peaceful retreat, occupying the entire floor. This private space includes a modern shower room and direct access to a large outdoor terrace through a patio door—an inviting spot to unwind, enjoy the sunshine, or admire the surrounding views.
Built on a floating slab foundation, this design is ideal for flat lots or for homeowners who prefer a home without a basement, offering durability and energy efficiency.
With its compact footprint, luminous interiors, and contemporary design, this house is perfect for those seeking a modern home that combines comfort, simplicity, and timeless elegance. Whether as a main residence, a cottage, or a downsized living option, it delivers the perfect blend of style and practicality in every square foot.
Distinctive elements
Compact Contemporary Home Filled with Natural Light
Modern architecture with warm materials such as stone accents, decorative columns, and elegant trim details.
Covered front porch offering charm and a welcoming outdoor space to enjoy throughout the seasons.
Practical entryway with a closed vestibule and spacious closet for everyday convenience.
Bright open-concept living area, featuring abundant natural light and a functional family layout.
Efficient kitchen with patio door access to the backyard and a nearby laundry nook designed for stacked washer and dryer.
Versatile main-floor room, ideal as a secondary bedroom or home office, plus a full bathroom on the same level.
Private master suite upstairs, occupying the entire floor, with a modern shower room and direct access to a large terrace through a patio door.
*Floating slab foundation included in the base plan.
---
*Unfinished Basement (optional $):
If you wish to purchase the unfinished basement plan option ($), please select this option in the shopping cart, in the "Select your foundation" section. If you do not select this option, you will receive a floating slab as your foundation, at no extra cost.































