Stacy (3211)
Single-Story Country House Plan with Single Garage, Cathedral Ceiling and Bright Open Living
Bedrooms
2, 3, 4
Bathroom(s)
1
Living area
1288 sq.ft.
Garage type
One-car garage
View by floor
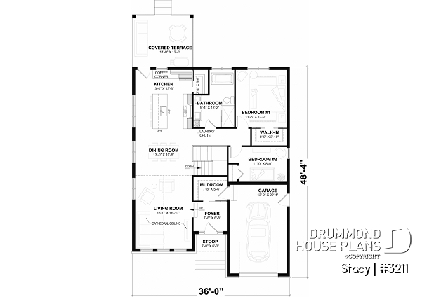
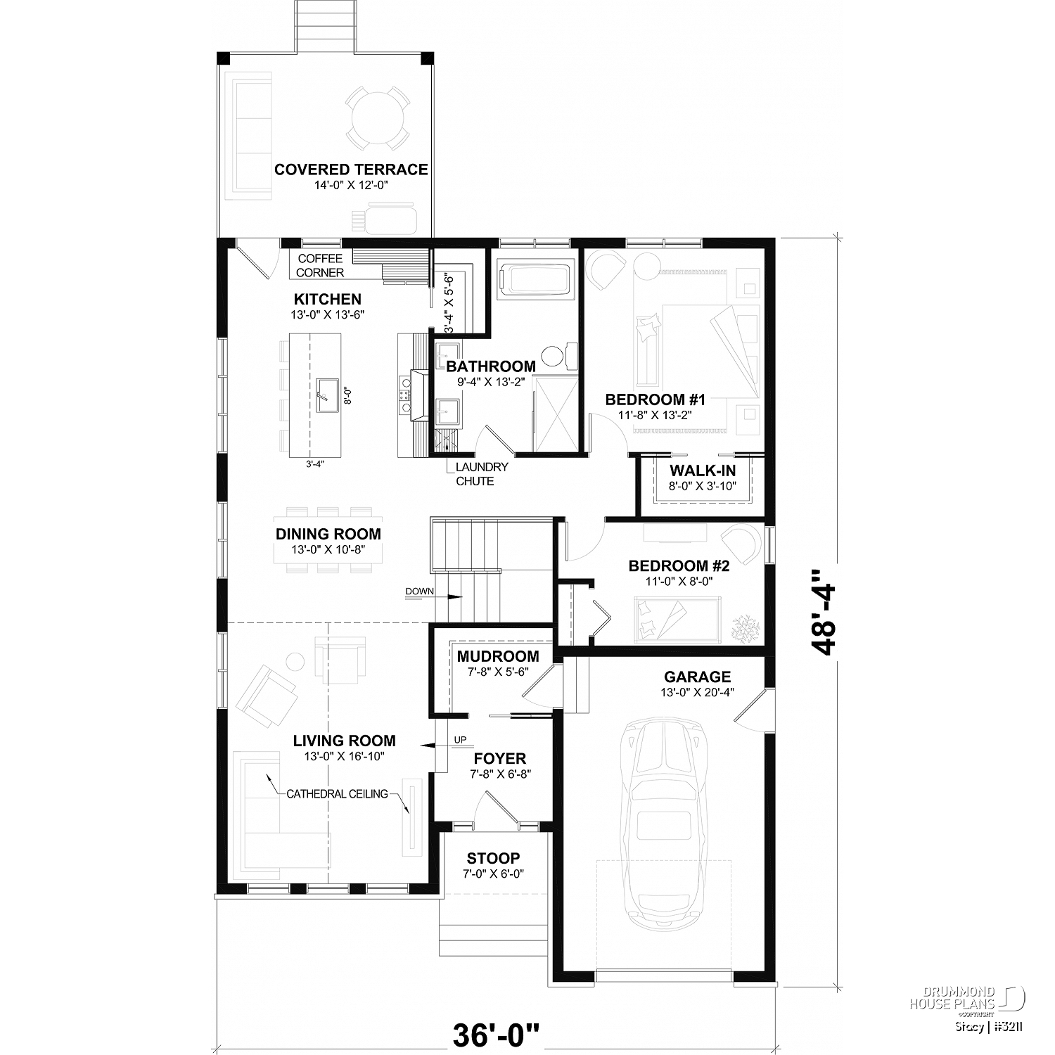
| 1st level | ||||
| Rooms | Sizes | Ceiling | ||
| Full bathroom | 9'4" x 13'2" | ~ 9'0" | ||
| Shower | 5'0" x 3'0" | ~ 0'0" | ||
| Kitchen | 13'0" x 13'6" | ~ 9'0" | ||
| Kitchen island | 8'0" x 3'4" | ~ 0'0" | ||
| Pantry | 5'6" x 3'4" | ~ 9'0" | ||
| Dining room | 13'0" x 10'8" | ~ 9'0" | ||
| Living room | 13'0" x 16'10" | ~ 13'9" | ||
| Bedroom | 11'8" x 13'2" | ~ 9'0" | ||
| Walk-in closet | 8'0" x 3'10" | ~ 9'0" | ||
| Bedroom | 11'0" x 8'0" | ~ 9'0" | ||
| Linen | 2'0" x 2'0" | ~ 8'0" | ||
| Foyer | 7'8" x 6'8" | ~ 9'5" | ||
| Garage | 13'0" x 20'4" | ~ 10'2" | ||
| Porch | 9'4" x 5'4" | ~ 0'0" | ||
| Terrace | 8'0" x 6'0" | ~ 0'0" | ||
| Porch | 7'0" x 6'0" | ~ 8'7" | ||
| Mud room | 7'8" x 5'6" | ~ 9'5" | ||
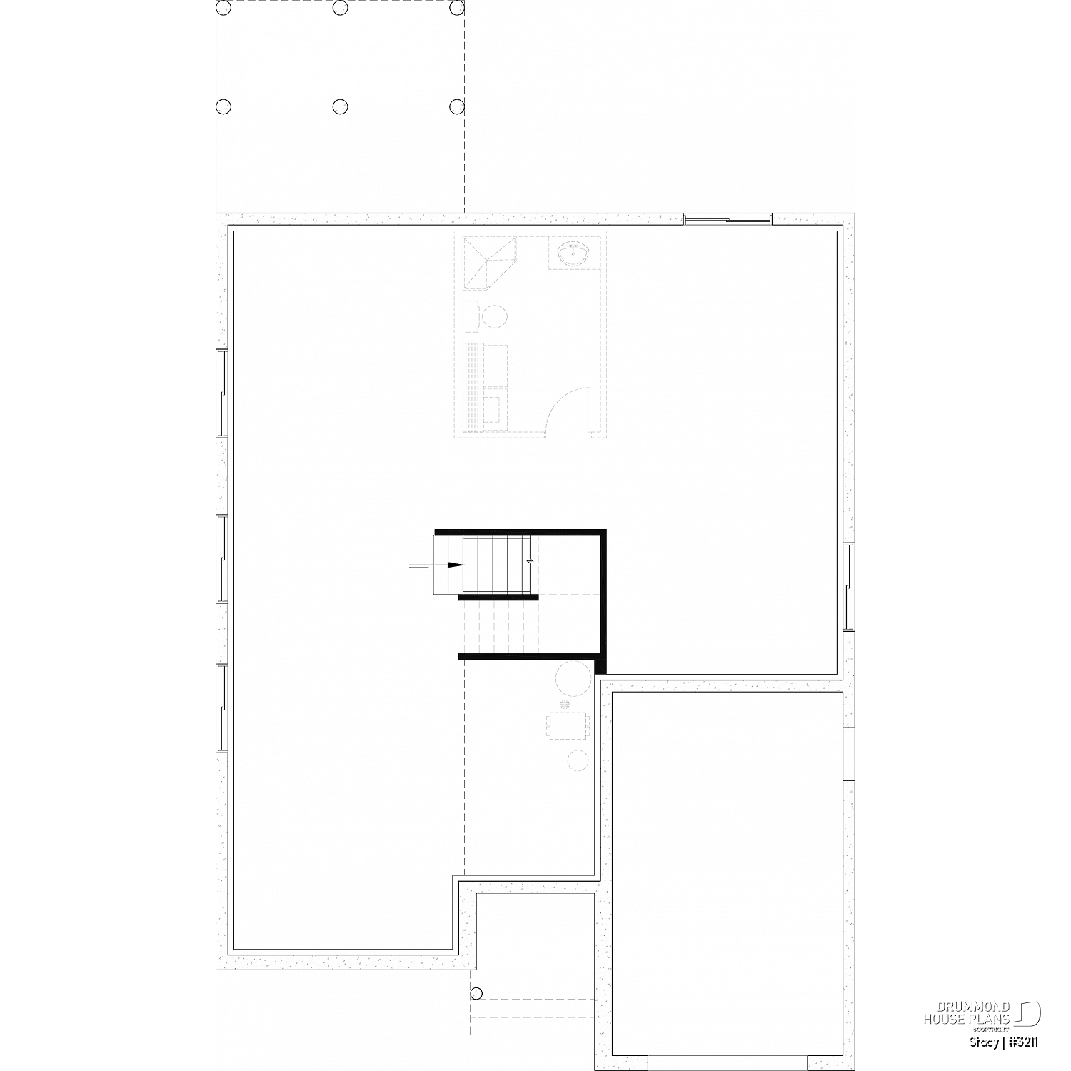
| Unfinished basement | ||||
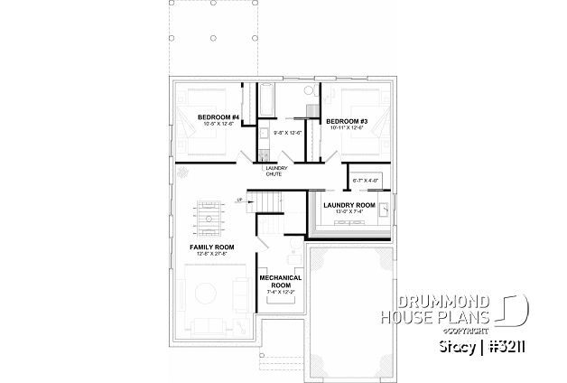
| Finished basement | ||||
| Rooms | Sizes | Ceiling | ||
| Laundry room | 13'0" x 7'4" | ~ 8'0" | ||
| Storage room | 6'7" x 4'0" | ~ 8'0" | ||
| Bedroom | 10'5" x 12'6" | ~ 8'0" | ||
| Closet | 6'8" x 2'0" | ~ 8'0" | ||
| Bedroom | 10'11" x 12'6" | ~ 8'0" | ||
| Closet | 6'8" x 2'0" | ~ 8'0" | ||
| Bathroom | 9'8" x 12'6" | ~ 8'0" | ||
| Great room or Family room | 12'8" x 27'8" | ~ 8'0" | ||
| Mechanical room | 7'4" x 12'2" | ~ 7'0" | ||
| Total living area | 1288 sq.ft. |
| 1st level | 1288 sq.ft. |
| Unfinished basement | 1288 sq.ft. |
| Finished basement | 1288 sq.ft. |
| Width | 36'0" |
| Depth | 48'4" |
| Ridge height from top of foundation | 26'8" |
| Exterior wall | 2 X 6 |
| Foundation type included in the plan | Unfinished Basement i |
Description
Main Floor: Sunken entry vestibule with coat closet, living room and dining area, kitchen with island, full bathroom, two bedrooms. Unfinished basement. Covered rear terrace. --- *Finished Basement (optional): Two bedrooms, family room, bathroom, laundry room and mechanical room. --- *If you wish to purchase the finished basement plan as shown on this plan’s page, please select this option in the shopping cart under “Select Your Foundation.” If this option is not selected, the plan will include an unfinished basement at no additional cost.
Other useful information on this plan
Full description
STACY House Plan (#3211) – Single-Story Country Home with Single Garage and Flexible Layout
The STACY house plan (#3211) is a single-story country-style home with a single garage designed to offer warmth, functionality, and long-term flexibility. This thoughtfully planned home blends classic charm with modern living, making it an excellent choice for families seeking comfort and adaptability.
The exterior of the STACY (#3211) features a welcoming façade with cedar shingles and stone accents, creating a timeless, coastal-inspired country look. The integrated single garage adds everyday convenience while maintaining a cohesive architectural design.
Inside, the main floor boasts 9-foot ceilings throughout, enhancing the sense of openness and natural light. The living room stands out with a striking 13-foot-9-inch cathedral ceiling, delivering an airy and inviting atmosphere. The open-concept layout seamlessly connects the kitchen, dining area, and living room, making this home ideal for entertaining and family gatherings.
The kitchen in the STACY house plan (#3211) is both stylish and functional, featuring a large central island and a walk-in pantry to support modern lifestyles. The main floor includes a primary bedroom with a walk-in closet and a second bedroom that can easily be used as a home office or guest room. A full bathroom with a separate tub and shower completes the main level.
At the rear, a spacious covered terrace extends the living space outdoors. The unfinished basement, ready for future development, offers excellent expansion potential.
As an option, it can be finished to include two additional bedrooms, a family room, a bathroom with a laundry chute, a laundry room, and a mechanical room, making the STACY (#3211) a versatile and future-ready home.
Distinctive elements
Single-story country-style house plan with a single garage.
Warm country-inspired architecture featuring cedar shingles and stone accents on the front façade for a charming coastal feel.
9-foot ceilings throughout the main floor, creating a bright and spacious atmosphere.
Cathedral ceiling in the living room reaching 13 feet 9 inches, enhancing the sense of openness and volume.
Front entry and garage entry conveniently located near the mudroom for everyday functionality.
Open-concept layout combining the kitchen, dining area, and living room, ideal for family living and entertaining.
Functional kitchen with a large central island and walk-in pantry.
Abundant natural light throughout the main living area.
Primary bedroom located on the main floor with a walk-in closet.
Second main-floor bedroom that can easily function as a home office.
Full bathroom featuring a separate bathtub and shower.
Spacious covered rear terrace, perfect for outdoor living in all seasons.
Unfinished basement, ready for future customization.
---
Optional finished basement including two additional bedrooms, a family room, a bathroom with laundry chute, a laundry room, and a mechanical room.
---
*If you wish to purchase the finished basement plan as shown on this plan’s page, please select this option in the shopping cart under “Select Your Foundation.” If this option is not selected, the plan will include an unfinished basement at no additional cost.









