Riverview (3892)
Bright 5 bedroom family home, spacious 2 car-garage, open floor plan
Bedrooms
5, 6, 4
Bathroom(s)
3
Living area
2432 sq.ft.
Garage type
Two-car garage
View by floor
| 1st level | ||||
| Rooms | Sizes | Ceiling | ||
| Garage | 40'0" x 33'4" | ~ 9'6" | ||
| Porch | 17'8" x 5'0" | ~ 0'0" | ||
| Foyer | 10'0" x 10'0" | ~ 9'0" | ||
| Mud room | 8'6" x 12'4" | ~ 9'0" | ||
| Powder room | 6'2" x 5'1" | ~ 9'0" | ||
| Storage | 2'4" x 2'2" | ~ 9'0" | ||
| Living room | 16'0" x 15'0" | ~ 18'6" | ||
| Kitchen | 15'8" x 12'8" | ~ 9'0" | ||
| Kitchen island | 10'0" x 4'0" | ~ 0'0" | ||
| Pantry | 8'9" x 6'9" | ~ 9'0" | ||
| Dining room | 10'0" x 15'8" | ~ 9'0" | ||
| Screened-in deck or porch | 14'0" x 21'0" | ~ 9'0" | ||
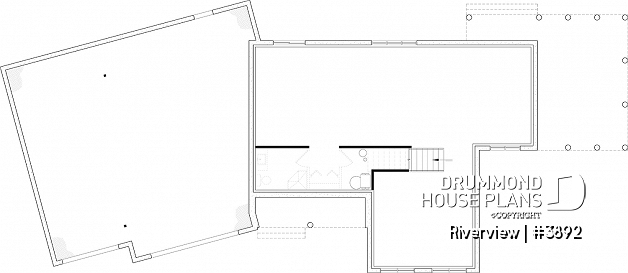
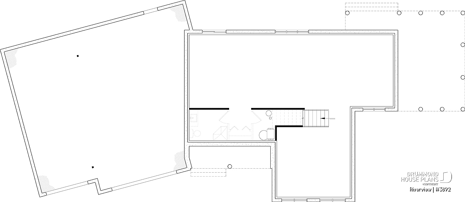
| Finished basement (Optional $) | ||||
| Rooms | Sizes | Ceiling | ||
| Great room or Family room | 15'4" x 14'8" | ~ 8'0" | ||
| Mechanical room | 18'0" x 6'6" | ~ 8'0" | ||
| Storage | 2'4" x 3'8" | ~ 8'0" | ||
| Cold room | 15'2" x 11'4" | ~ 8'0" | ||
| Laundry room | 10'2" x 11'4" | ~ 8'0" | ||
| Bathroom | 5'0" x 11'4" | ~ 8'0" | ||
| Shower | 5'0" x 3'0" | ~ 0'0" | ||
| Linen | 1'6" x 2'0" | ~ 0'0" | ||
| Home office | 11'2" x 15'0" | ~ 8'0" | ||
| Bedroom | 15'2" x 11'4" | ~ 8'0" | ||
| Walk-in closet | 8'2" x 3'8" | ~ 8'0" | ||
| 2nd level | ||||
| Rooms | Sizes | Ceiling | ||
| Master suite | 15'0" x 11'6" | ~ 8'0" | ||
| Walk-in closet | 7'0" x 10'10" | ~ 8'0" | ||
| Full bathroom | 9'8" x 10'10" | ~ 8'0" | ||
| Bedroom | 9'0" x 15'8" | ~ 8'0" | ||
| Closet | 2'0" x 5'0" | ~ 8'0" | ||
| Bedroom | 10'0" x 13'4" | ~ 8'0" | ||
| Closet | 5'2" x 2'0" | ~ 8'0" | ||
| Bedroom | 9'6" x 13'4" | ~ 8'0" | ||
| Closet | 5'8" x 2'0" | ~ 8'0" | ||
| Storage | 7'0" x 1'8" | ~ 8'0" | ||
| Bathroom | 8'2" x 12'2" | ~ 8'0" | ||
| Unfinished basement | ||||
| Total living area | 2432 sq.ft. |
| 1st level | 1217 sq.ft. |
| Finished basement (Optional $) | 1217 sq.ft. |
| 2nd level | 1215 sq.ft. |
| Unfinished basement | 1217 sq.ft. |
| Width | 83'2" |
| Depth | 42'3" |
| Ridge height from top of foundation | 33'2" |
| Exterior wall | 2 X 6 |
| Foundation type included in the plan | Unfinished Basement i |
Description
Ground floor: Front and garage entrances, mudroom, powder room, kitchen with pantry, dining room, living room. Second floor: Master suite with private bathroom, 3 additional bedrooms, full bathroom, reading corner on bench. Very spacious garage with workshop area. Large sheltered terrace. Unfinished basement. --- *Finished basement: Family room, guest bedroom with walk-in closet, office/den, laundry room, shower room and mechanical room. --- *If you wish to purchase the finished basement plan, as presented on this plan page, please select this option in the shopping cart, in the "Selection of foundation type" section. If you do not select this option, you will receive the unfinished full basement option, at no extra charge.
Other useful information on this plan
Full description
Floor plans with 5 to 6 bedrooms, spacious 2-car garage and screened-in porch!
The Riverview house plan (#3892) perfectly captures the timeless charm of modern Farmhouse architecture while offering the thoughtful, functional features today’s families are looking for. Warm, spacious, and filled with natural light, this home is designed to deliver lasting comfort and an exceptional quality of life—both for everyday living and for special gatherings.
From the moment you arrive, the covered front porch adds welcoming curb appeal while providing protection in all seasons. Inside, 9-foot ceilings throughout the main floor create a bright and open atmosphere, while the living room stands out with its impressive 18’6” cathedral ceiling, allowing natural light to pour in. A cozy fireplace anchors the space, making it the perfect setting for relaxing evenings and memorable moments with family and friends.
The inviting kitchen, open to the dining area, is the heart of the home. It features a large central island, a walk-in pantry, and an efficient layout designed for both everyday meals and entertaining. Just off the dining room, a spacious screened-in porch of approximately 300 square feet extends the living space outdoors, creating an ideal spot for summer meals, gatherings, or quiet moments surrounded by fresh air.
Functionality is a key element of the main floor design. A generous front entry provides space for a bench and decorative accents, while a powder room discreetly positioned away from the main living areas ensures added privacy. The garage entry opens directly into the mudroom, simplifying daily routines, and the spacious garage offers room for additional storage or a workshop area.
Riverview (#3892) – A Modern Farmhouse Home Designed for Comfortable Family Living
Upstairs, the primary suite serves as a private retreat, complete with a large walk-in closet (7’ x 10’10”) and a private ensuite bathroom. Three additional bedrooms, all well proportioned, share a family bathroom with double vanities, while the bathtub and toilet are located in a separate area for enhanced convenience.
The unfinished basement, included in the base plan, provides outstanding flexibility for future expansion. With the *optional finished basement, homeowners can add an additional bedroom, a large family room, a shower room, a versatile home office or sixth bedroom, as well as a spacious laundry room and mechanical room with ample storage.
Versatile, welcoming, and designed to grow with your needs, the Riverview (#3892) is a modern Farmhouse home that blends comfort, style, and adaptability—today and for years to come.
Distinctive elements
Comfortable modern Farmhouse-style home plan, blending timeless charm with contemporary living.
9’ ceilings throughout the main floor, with the exception of the living room, which features an impressive 18’6” cathedral ceiling.
Up to 5 bedrooms: 4 bedrooms on the upper floor and 1 bedroom in the basement.
***Option for a 6th bedroom by converting the basement office, if the optional finished basement is selected.
Covered front balcony, adding character and protection to the main entrance.
Garage entry conveniently located next to the mudroom, ensuring smooth daily organization.
Spacious front entry, offering enough room for a bench and decorative area rug.
Powder room discreetly positioned, away from main living areas for added privacy.
Inviting kitchen with a walk-in pantry and large central island, open to the dining area.
Bright and impressive living room, featuring an 18’6” ceiling, abundant natural light, and a cozy fireplace.
Generous primary suite with a large walk-in closet (7’ x 10’10”) and a private ensuite bathroom.
Three secondary bedrooms upstairs, sharing a family bathroom with double vanities, and a separate tub and toilet area.
Spacious garage, allowing room for a workshop area and additional storage.
Large screened-in porch of approximately 300 sq. ft., accessible from the dining area near the kitchen—ideal for summer living.
Unfinished basement included in the base plan, offering excellent future development potential.
---
*Optional finished basement:
Additional bedroom.
Shower ro
Large family room.
Versatile home office (or bedroom #6).
Spacious laundry room and mechanical room with storage space.
---
*If you wish to purchase the finished basement plan, as presented on this plan page, please select this option in the shopping cart, in the "Selection of foundation type" section. If you do not select this option, you will receive the unfinished full basement option, at no extra charge.






















