Riverview (3892)
Bright 5 bedroom family home, spacious 2 car-garage, open floor plan
Bedrooms
5, 4
Bathroom(s)
3
Living area
2432 sq.ft.
Garage type
Two-car garage
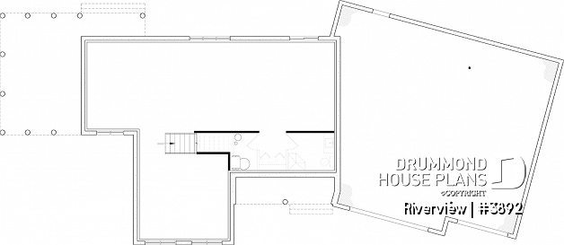
View by floor
| 1st level | ||||
| Rooms | Sizes | Ceiling | ||
| Garage | 40'0" x 33'4" | ~ 9'6" | ||
| Porch | 17'8" x 5'0" | ~ 0'0" | ||
| Foyer | 10'0" x 10'0" | ~ 9'0" | ||
| Mud room | 8'6" x 12'4" | ~ 9'0" | ||
| Powder room | 6'2" x 5'1" | ~ 9'0" | ||
| Storage | 2'4" x 2'2" | ~ 9'0" | ||
| Living room | 16'0" x 15'0" | ~ 18'6" | ||
| Kitchen | 15'8" x 12'8" | ~ 9'0" | ||
| Kitchen island | 10'0" x 4'0" | ~ 0'0" | ||
| Pantry | 8'9" x 6'9" | ~ 9'0" | ||
| Dining room | 10'0" x 15'8" | ~ 9'0" | ||
| Screened-in deck or porch | 14'0" x 21'0" | ~ 9'0" | ||
| Finished basement (Optional $) | ||||
| Rooms | Sizes | Ceiling | ||
| Great room or Family room | 15'4" x 14'8" | ~ 8'0" | ||
| Mechanical room | 18'0" x 6'6" | ~ 8'0" | ||
| Storage | 2'4" x 3'8" | ~ 8'0" | ||
| Cold room | 15'2" x 11'4" | ~ 8'0" | ||
| Laundry room | 10'2" x 11'4" | ~ 8'0" | ||
| Bathroom | 5'0" x 11'4" | ~ 8'0" | ||
| Shower | 5'0" x 3'0" | ~ 0'0" | ||
| Linen | 1'6" x 2'0" | ~ 0'0" | ||
| Home office | 11'2" x 15'0" | ~ 8'0" | ||
| Bedroom | 15'2" x 11'4" | ~ 8'0" | ||
| Walk-in closet | 8'2" x 3'8" | ~ 8'0" | ||
| 2nd level | ||||
| Rooms | Sizes | Ceiling | ||
| Master suite | 15'0" x 11'6" | ~ 8'0" | ||
| Walk-in closet | 7'0" x 10'10" | ~ 8'0" | ||
| Full bathroom | 9'8" x 10'10" | ~ 8'0" | ||
| Bedroom | 9'0" x 15'8" | ~ 8'0" | ||
| Closet | 2'0" x 5'0" | ~ 8'0" | ||
| Bedroom | 10'0" x 13'4" | ~ 8'0" | ||
| Closet | 5'2" x 2'0" | ~ 8'0" | ||
| Bedroom | 9'6" x 13'4" | ~ 8'0" | ||
| Closet | 5'8" x 2'0" | ~ 8'0" | ||
| Storage | 7'0" x 1'8" | ~ 8'0" | ||
| Bathroom | 8'2" x 12'2" | ~ 8'0" | ||
| Unfinished basement | ||||
| Total living area | 2432 sq.ft. |
| 1st level | 1217 sq.ft. |
| Finished basement (Optional $) | 1217 sq.ft. |
| 2nd level | 1215 sq.ft. |
| Unfinished basement | 1217 sq.ft. |
| Width | 83'2" |
| Depth | 42'3" |
| Ridge height from top of foundation | 33'2" |
| Exterior wall | 2 X 6 |
| Foundation type included in the plan | Unfinished Basement i |
Description
Finished basement: Family room, guest bedroom with walk-in closet, office/den, laundry room, shower room and mechanical room. Ground floor: Front and garage entrances, mudroom, powder room, kitchen with pantry, dining room, living room. Large sheltered terrace. Second floor: Master suite with private bathroom, 3 additional bedrooms, full bathroom, reading corner on bench. Very spacious garage with workshop area. Several foundation options are available for this plan, please contact us for more info.
Other useful information on this plan
Distinctive elements
Cozy farmhouse style home plan.
9' ceiling on the entire ground floor, except in the living room where it is 18'6''.
4 bedrooms upstairs + one bedroom in the finished basement for a total of 5 bedrooms.
Sheltered front balcony.
Entrance to the garage directly adjacent to the mudroom.
Good size front main entrance with space for bench and decorative area rug.
Half bath set back from the common areas.
Kitchen with pantry and large island, and open to the dining room.
Superb brightness in the living room, which has an 18'6'' ceiling, as well as a fireplace.
The second floor parents' suite offers a large 7' x 10'10'' walk-in closet and a private bathroom.
The 3 secondary bedrooms upstairs share a bathroom with bath and toilet separated from the double vanity.
The garage is spacious enough to include a workshop area.
The basement is fully finished and offers a family room and an office, in addition to a large laundry room.
A spacious screened-in side porch, nearly 300 sq.ft., is accessible from the dining room, near the kitchen.






















