Ashland 2 (4790)
Small 2 story house plan with 3 to 4 bedrooms, laundry room on main floor, optional finished basement ($)
Bedrooms
3, 4
Bathroom(s)
2
Living area
1266 sq.ft.
Garage type
-
View by floor
| 1st level | ||||
| Rooms | Sizes | Ceiling | ||
| Half bath or powder room | 8'0" x 4'8" | ~ 8'0" | ||
| Kitchen | 11'0" x 10'6" | ~ 8'0" | ||
| Pantry | 1'8" x 2'0" | ~ 0'0" | ||
| Dining room | 8'8" x 10'6" | ~ 8'0" | ||
| Living room | 12'10" x 13'2" | ~ 8'0" | ||
| Foyer | 6'10" x 3'4" | ~ 8'0" | ||
| Closet | 2'0" x 5'10" | ~ 8'0" | ||
| Laundry room | 5'4" x 5'0" | ~ 8'0" | ||
| Covered porch | 14'4" x 4'0" | ~ 0'0" | ||
| Deck | 8'0" x 4'0" | ~ 0'0" | ||
| Powder room | 4'8" x 5'8" | ~ 8'0" | ||
| Terrace | 8'0" x 4'0" | ~ 0'0" | ||
| Mud room | 4'0" x 4'8" | ~ 8'0" | ||
| 2nd level | ||||
| Rooms | Sizes | Ceiling | ||
| Full bathroom | 8'4" x 9'8" | ~ 8'0" | ||
| Shower | 4'0" x 3'0" | ~ 0'0" | ||
| Linen | 1'6" x 1'10" | ~ 0'0" | ||
| Bedroom | 11'6" x 12'0" | ~ 8'0" | ||
| Closet | 8'0" x 2'0" | ~ 8'0" | ||
| Bedroom | 11'0" x 9'0" | ~ 8'0" | ||
| Closet | 4'0" x 2'0" | ~ 8'0" | ||
| Bedroom | 10'4" x 10'2" | ~ 8'0" | ||
| Closet | 3'4" x 2'0" | ~ 8'0" | ||
| Linen | 2'0" x 1'6" | ~ 8'0" | ||
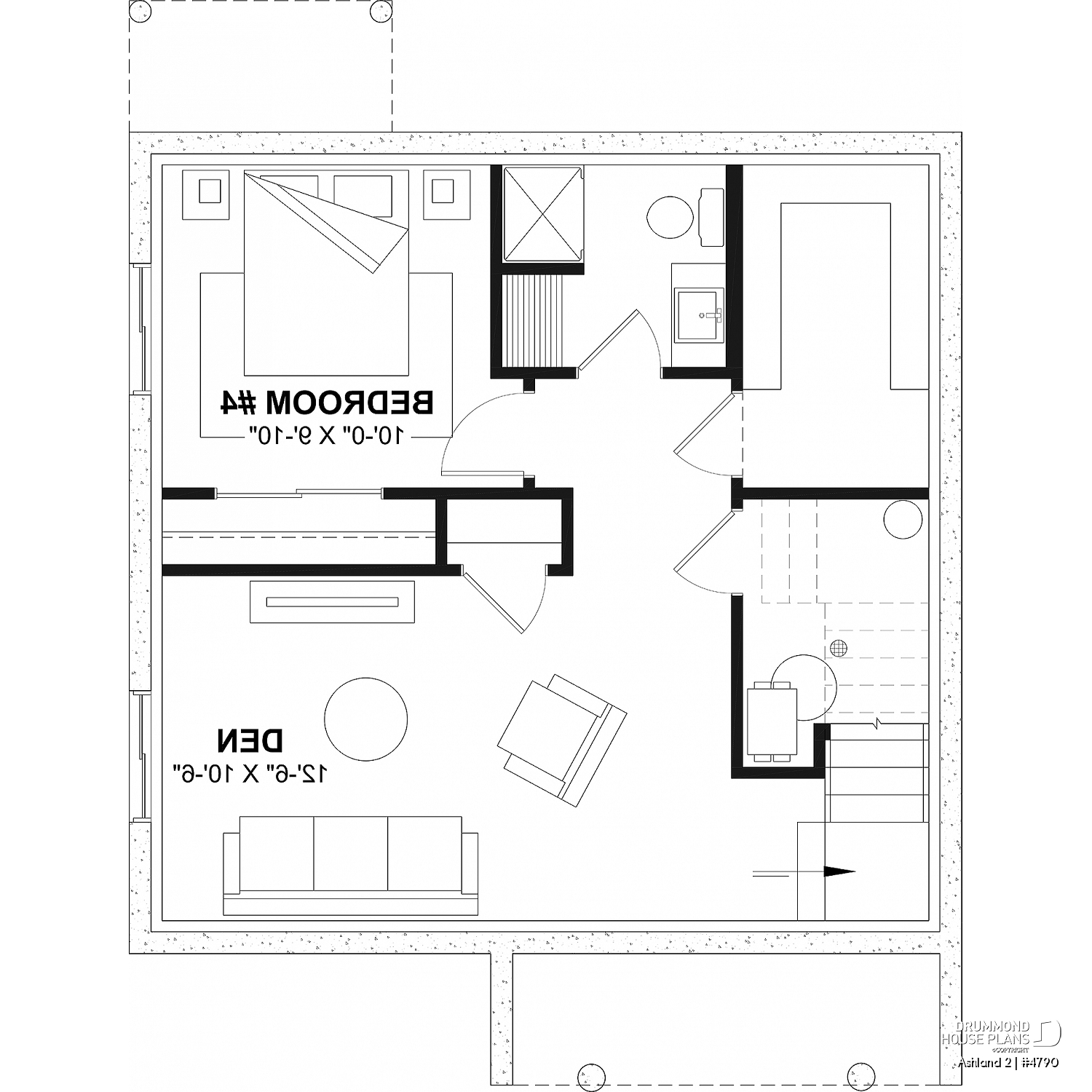
| Finished basement (Optional $) | ||||
| Rooms | Sizes | Ceiling | ||
| Bedroom | 10'0" x 9'10" | ~ 8'0" | ||
| Closet | 8'4" x 2'0" | ~ 8'0" | ||
| Den | 12'6" x 10'6" | ~ 8'0" | ||
| Closet | 3'6" x 2'0" | ~ 8'0" | ||
| Bathroom | 6'10" x 6'2" | ~ 8'0" | ||
| Shower | 3'0" x 2'6" | ~ 0'0" | ||
| Storage | 5'8" x 9'10" | ~ 0'6" | ||
| Unfinished basement | ||||
| Total living area | 1266 sq.ft. |
| 1st level | 633 sq.ft. |
| 2nd level | 633 sq.ft. |
| Finished basement (Optional $) | 633 sq.ft. |
| Unfinished basement | 633 sq.ft. |
| Width | 25'4" |
| Depth | 25'0" |
| Ridge height from top of foundation | 27'0" |
| Exterior wall | 2 X 6 |
| Foundation type included in the plan | Unfinished Basement i |
Description
Main level: Entry hall with closet, kitchen, dining area, family room, half-bath, laundry facilities. 2nd level: Three bedrooms, bathroom. --- *Optional finished basement ($): one bedroom, small family room, storage, shower room. --- *If you wish to purchase the finished basement plan, please select this option in the shopping cart, in the "Selection of foundation type" section. If you do not select this option, you will receive the unfinished full basement option, at no extra charge.
Other useful information on this plan
Full description
Timeless Two-Storey Home: Offering Space, Comfort, and Affordable Charm for the Whole Family
This traditional two-story house provides a perfect living space for families at an affordable price. The designers have thoughtfully arranged every detail to create maximum comfort while maintaining a sophisticated and warm design.
The charming front steps welcome visitors to the house while creating an opportunity to place flowerpots or relax outside peacefully. The inviting entrance marks the start of a home environment that provides comfortable and joyful living.
The interior design includes 3 to 4 bedrooms based on *basement finishing options. The adaptable floor plan adjusts to your lifestyle requirements whether you need space for additional family members or a home office or guest accommodations.
The home features up to 2.5 bathrooms which include both a full bathroom on the upper floor and a useful powder room on the ground level. The basement offers the possibility to install a second bathroom which will fulfill your particular requirements. The main-floor laundry room provides daily living convenience through its efficient design.
The *optional finished basement ($) adds valuable extra living space which includes a comfortable secondary living room suitable for teenagers or guests or anyone seeking a peaceful retreat. The area serves as an excellent location for gaming activities and movie screenings and relaxation time.
This home achieves an excellent equilibrium between classic sophistication and contemporary practicality which makes it suitable for people who want to create a comfortable and stylish home without breaking the bank.
---
*If you wish to purchase the finished basement plan, please select this option in the shopping cart, in the "Selection of foundation type" section. If you do not select this option, you will receive the unfinished full basement option, at no extra charge.
Distinctive elements
Two-storey home, affordable and timeless in style!
Charming covered front porch, perfect for welcoming guests.
3 to 4 bedrooms, depending on *basement finishing.
Up to 2.5 bathrooms for everyday comfort.
Convenient laundry room on the main floor.
Powder room also available on the main level.
A small living area is planned in the basement — ideal as a cozy space for teens or kids.
---
*If you wish to purchase the finished basement plan, please select this option in the shopping cart, in the "Selection of foundation type" section. If you do not select this option, you will receive the unfinished full basement option, at no extra charge.




