Auburn (6101)
Charming 3 bedroom Modern Rustic home plan, optional finished basement, home theater and large covered deck
Bedrooms
2, 3
Bathroom(s)
2
Living area
1190 sq.ft.
Garage type
-
View by floor
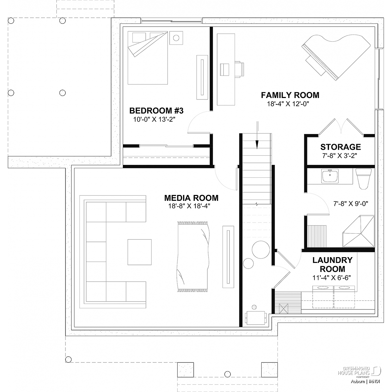
| Finished basement (Optional $) | ||||
| Rooms | Sizes | Ceiling | ||
| Home theater | 18'8" x 18'0" | ~ 8'0" | ||
| Bedroom | 9'10" x 13'4" | ~ 8'0" | ||
| Closet | 9'10" x 2'0" | ~ 8'0" | ||
| Great room or Family room | 18'4" x 12'0" | ~ 8'0" | ||
| Storage room | 7'8" x 3'2" | ~ 8'0" | ||
| Bathroom | 7'8" x 9'0" | ~ 8'0" | ||
| Shower | 3'8" x 3'8" | ~ 8'0" | ||
| Linen | 2'6" x 2'2" | ~ 0'0" | ||
| Laundry room | 11'4" x 6'6" | ~ 8'0" | ||
| Linen | 3'0" x 2'6" | ~ 0'0" | ||
| Storage room | 3'4" x 12'0" | ~ 8'0" | ||
| 1st level | ||||
| Rooms | Sizes | Ceiling | ||
| Foyer | 10'8" x 6'6" | ~ 8'0" | ||
| Storage room | 4'0" x 4'2" | ~ 8'0" | ||
| Master suite | 11'2" x 14'0" | ~ 8'0" | ||
| Walk-in closet | 4'0" x 5'0" | ~ 8'0" | ||
| Full bathroom | 12'0" x 9'0" | ~ 8'0" | ||
| Shower | 4'0" x 3'0" | ~ 8'0" | ||
| Linen | 1'10" x 1'6" | ~ 0'0" | ||
| Bedroom | 11'8" x 10'0" | ~ 8'0" | ||
| Closet | 4'4" x 2'0" | ~ 8'0" | ||
| Kitchen | 13'10" x 12'4" | ~ 8'0" | ||
| Kitchen island | 6'4" x 3'2" | ~ 0'0" | ||
| Pantry | 5'2" x 5'4" | ~ 8'0" | ||
| Dining room | 13'10" x 9'0" | ~ 8'0" | ||
| Living room | 13'8" x 13'6" | ~ 8'0" | ||
| Covered porch | 11'4" x 4'8" | ~ 8'0" | ||
| Covered deck | 12'0" x 18'0" | ~ 11'6" | ||
| Covered porch | 12'8" x 3'0" | ~ 8'0" | ||
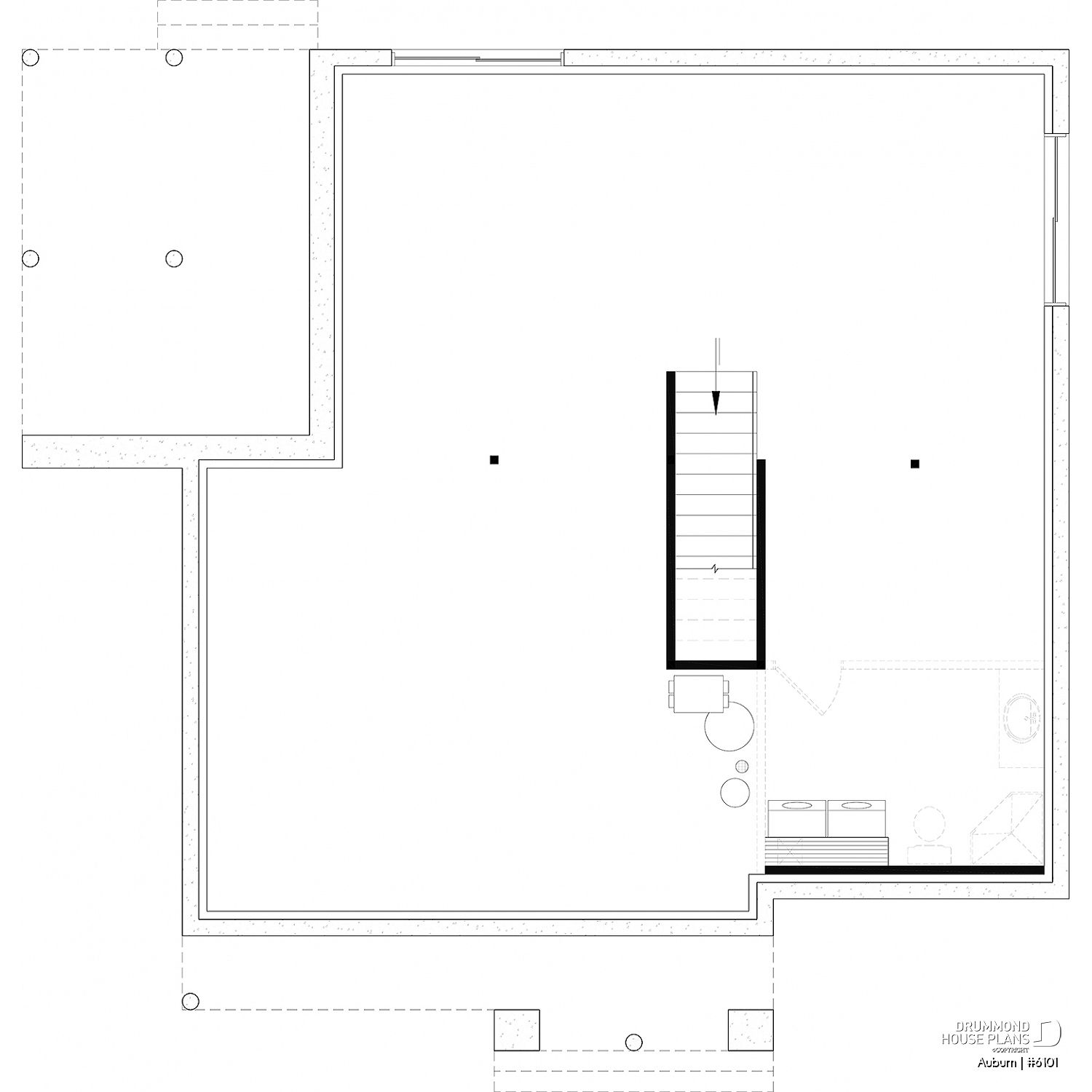
| Unfinished basement | ||||
| Total living area | 1190 sq.ft. |
| Finished basement (Optional $) | 1190 sq.ft. |
| 1st level | 1190 sq.ft. |
| Unfinished basement | 1190 sq.ft. |
| Width | 36'0" |
| Depth | 36'0" |
| Ridge height from top of foundation | 20'8" |
| Exterior wall | 2 X 6 |
| Foundation type included in the plan | Unfinished Basement i |
Description
Main floor: Mudroom, 2 bedrooms, kitchen, dining and living room, full bathroom. *Unfinished basement. Sheltered terrace. --- *Finished basement: One bedroom, shower room, laundry room, home theater and famiy room. --- *If you wish to purchase the finished basement plan, as presented on this plan page, please select this option in the shopping cart, in the "Selection of foundation type" section. If you do not select this option, you will receive the unfinished full basement option, at no extra charge.
Other useful information on this plan
Full description
Warm and Timeless Single-Story Home with Open-Concept Living and Cathedral-Ceiling Covered Terrace – A Charming, Family-Friendly Home Design
This warm and inviting single-story home instantly captures the eye with its timeless design and beautifully selected materials. Vertical siding, brick accents, and elegant wood gables create a chic modern-farmhouse look, while the covered front porch offers year-round protection and a welcoming first impression.
Inside, the entryway is both stylish and functional, featuring a built-in mudroom with shelving and a convenient bench, plus an enclosed storage area with a sliding barn-style door. At the front of the home, two bedrooms and a full bathroom provide comfort and privacy. The main bathroom includes a separate tub and shower, a double vanity, and even a built-in laundry chute—a thoughtful touch families truly appreciate. The primary bedroom stands out with abundant natural light from three well-placed windows and a spacious walk-in closet.
The heart of the home unfolds into a bright open-concept living space where the kitchen, dining room, and great room flow beautifully together. The large kitchen island is perfect for gatherings, while the walk-in pantry offers generous storage for busy families. A stunning double-sided central fireplace enhances both the dining area and the living room, becoming a defining architectural feature that adds warmth and character.
From the dining room, large doors open onto one of the home's most impressive highlights: a covered rear terrace with a breathtaking cathedral ceiling. This outdoor living area creates a seamless extension of the home's interior and is perfect for relaxed evenings, summer meals, or cozy fall afternoons.
The unfinished basement offers tremendous potential to tailor the space to your lifestyle. In its fully finished version, it includes a spacious family room, an impressive 18' x 18' home theater, a third bedroom, and a second bathroom with a corner shower. A full laundry room with a countertop workspace and a laundry chute from the main floor completes this level, adding practicality and convenience.
This thoughtfully designed home blends charm, warmth, functionality, and modern farmhouse appeal. It’s a plan crafted for families who want a welcoming and flexible space that adapts beautifully to every stage of life.
Distinctive elements
Warm and inviting single-story home designed with timeless, carefully selected materials.
Beautiful open-concept layout facing the rear yard, maximizing natural light and outdoor views.
Covered front porch offering protection from the elements and a welcoming first impression.
Functional front entry with a built-in mudroom, complete with shelving and a convenient bench.
Spacious kitchen featuring a central island and large pantry—perfect for cooking and entertaining.
Dining area fully open to both the kitchen and the living room for seamless flow.
Central double-sided fireplace, adding warmth and ambiance to two rooms at once.
Main-floor primary bedroom with a walk-in closet.
Full bathroom with separate tub and shower, plus a double vanity for added comfort.
Covered rear terrace with a cathedral ceiling, ideal for outdoor dining or relaxing year-round.
*Unfinished basement ready to be customized to your needs.
---
*Optional Finished Basement
Adds a third bedroom, a spacious family room, and a home theater.
Dedicated laundry room with a convenient laundry chute from the main floor.
Additional shower room for flexibility and comfort.


















