Andrews (3268)
Contemporary split bedroom home model with 3 bedrooms, den and a 2-car garage
Bedrooms
3, 4
Bathroom(s)
2
Living area
1947 sq.ft.
Garage type
Two-car garage
Virtual visit
View by floor
| 1st level | ||||
| Rooms | Sizes | Ceiling | ||
| Foyer | 8'8" x 5'8" | ~ 9'0" | ||
| Closet | 5'8" x 2'0" | ~ 9'0" | ||
| Covered porch | 9'6" x 7'2" | ~ 11'4" | ||
| Home office | 10'4" x 9'10" | ~ 9'0" | ||
| Bedroom | 11'8" x 11'4" | ~ 9'0" | ||
| Closet | 4'8" x 2'0" | ~ 9'0" | ||
| Closet | 4'10" x 1'8" | ~ 9'0" | ||
| Bathroom | 6'0" x 8'10" | ~ 9'0" | ||
| Bedroom | 11'8" x 12'6" | ~ 9'0" | ||
| Closet | 6'0" x 2'0" | ~ 9'0" | ||
| Covered deck | 13'8" x 12'0" | ~ 9'4" | ||
| Laundry room | 6'0" x 7'8" | ~ 9'0" | ||
| Mud room | 11'0" x 5'3" | ~ 9'0" | ||
| Powder room | 6'6" x 2'6" | ~ 9'0" | ||
| Kitchen | 10'0" x 18'0" | ~ 9'0" | ||
| Kitchen island | 9'0" x 3'4" | ~ 0'0" | ||
| Dining room | 14'8" x 9'6" | ~ 13'3" | ||
| Living room | 14'8" x 18'0" | ~ 13'3" | ||
| Pantry | 4'8" x 6'0" | ~ 9'0" | ||
| Master suite | 12'8" x 13'0" | ~ 9'0" | ||
| Full bathroom | 11'6" x 11'6" | ~ 9'0" | ||
| Walk-in closet | 6'0" x 7'10" | ~ 9'0" | ||
| Shower | 6'4" x 3'7" | ~ 9'0" | ||
| Linen | 1'8" x 1'0" | ~ 0'0" | ||
| Garage | 24'4" x 20'10" | ~ 9'6" | ||
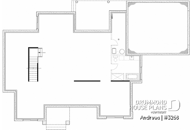
| Unfinished basement (Optional $) | ||||
| 1st level (Optional $) | ||||
| Total living area | 1947 sq.ft. |
| 1st level | 1947 sq.ft. |
| Unfinished basement (Optional $) | 1947 sq.ft. |
| 1st level (Optional $) | 1947 sq.ft. |
| Width | 74'4" |
| Depth | 49'2" |
| Ridge height from top of foundation | 18'0" |
| Exterior wall | 2 X 6 |
| Foundation type included in the plan | Floating Slab i |
Description
Ground floor: Entrance, office, kitchen, dining room, living room, cloakroom, powder room, laudry room, parents' suite with private bathroom and walk-in closet, 2 additional bedrooms, full bathroom. Sheltered rear terrace. Double side garage. Base foundation: floating slab. *Several types of foundation available for all our plans ($).
Other useful information on this plan
Full description
European-Inspired Single-Story House Plan with 3–4 Bedrooms & Side-Load 2-Car Garage
This European-inspired single-story house plan blends timeless curb appeal with a smart, family-friendly layout. Offering 3–4 bedrooms and a side-load 2-car garage, it delivers the open, effortless living today’s homeowners love—wrapped in classic architectural character that never goes out of style.
A covered front porch welcomes you into a spacious foyer, where an arched opening leads to the living room. Inside, 9' ceilings run throughout for an airy feel, while a cathedral ceiling elevates the living room’s volume and showcases the fireplace. The living area flows seamlessly to the dining room—bathed in natural light—and into a well-appointed kitchen with island and pantry, perfect for everyday meals and effortless entertaining. A powder room sits just off the kitchen, thoughtfully set back for privacy.
Function shines in the back-of-house connection: the side-load garage enters through a practical mudroom, only steps from the laundry and kitchen—ideal for unloading groceries, sports gear, or seasonal wear without tracking through the main entry.
The split-bedroom layout prioritizes privacy. On one side, the primary suite offers a relaxing retreat with a private bath featuring a separate tub and shower, a double vanity, and a walk-in closet. Across the home, two secondary bedrooms share a full bath, creating a comfortable zone for kids or guests. Up front, a flexible study (or Bedroom #4) sits near the entry—perfect for work-from-home, a nursery, or a welcoming guest room.
Outdoor living gets equal attention. A covered rear terrace/patio is generously sized for both dining and lounge areas, extending your living space for morning coffee, weekend barbecues, or laid-back summer evenings.
Engineered for longevity, the planned foundation is slab-on-grade, valued for energy performance and low maintenance. Prefer a different setup? Other foundation options are available for this plan—simply select at checkout ($) to match your lot conditions and lifestyle.
In short, this single-story European house plan combines elegant style with open-concept living, abundant light, and day-to-day practicality—from the side-load garage and mudroom connection to the island kitchen and private primary suite. A versatile design that adapts easily to the way American families live today.
Distinctive elements
Magnificent single-story European-inspired home, 3–4 bedrooms, side-load 2-car garage.
Split-bedroom layout: primary suite on one side; kids/guest rooms on the other.
Side-load garage connects to mudroom, laundry, and kitchen.
Covered front porch opens to a spacious foyer.
Arched opening transitions to the living room.
9' ceilings throughout; cathedral ceiling in the living room.
Study / Bedroom #4 near the front entry.
Living room with fireplace, open to dining and kitchen.
Dining room with abundant natural light.
Kitchen with island and pantry.
Powder room near the kitchen, set back for privacy.
Primary suite with private bath (separate tub & shower, double vanity) and walk-in closet.
Two secondary bedrooms share a full bath.
Covered rear terrace/patio sized for dining and lounge areas.
Planned foundation: floating slab.
Other foundation options available for all plans (select at checkout, $).


























